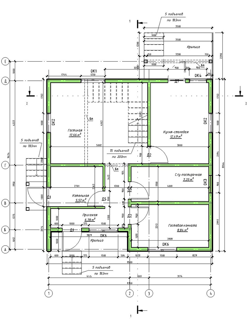
Фундамент — деревянный ростверк на винтовых сваях.
Несущие стены — SIP панель (174мм).
Покрытие — мягкая черепица.
Наружная отделка — панели под кирпич(бежевый).
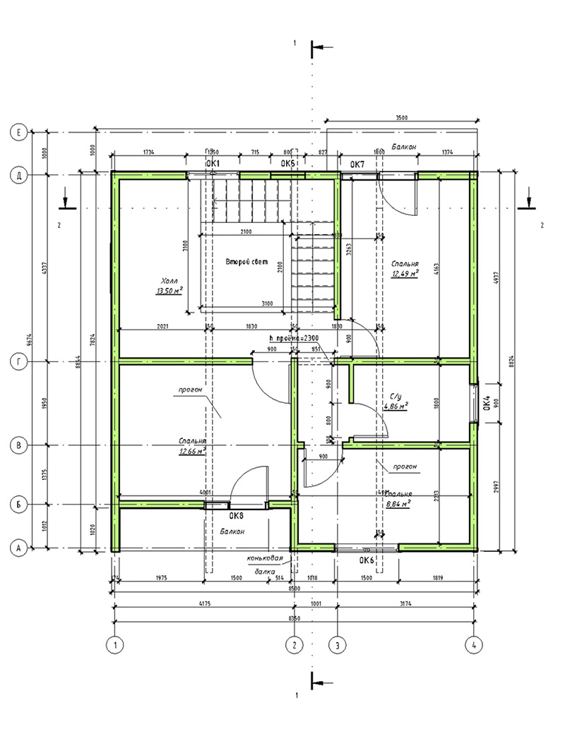
Фундамент — деревянный ростверк на винтовых сваях.
Несущие стены — SIP панель (174мм).
Покрытие — мягкая черепица.
Наружная отделка — панели под кирпич(бежевый).





