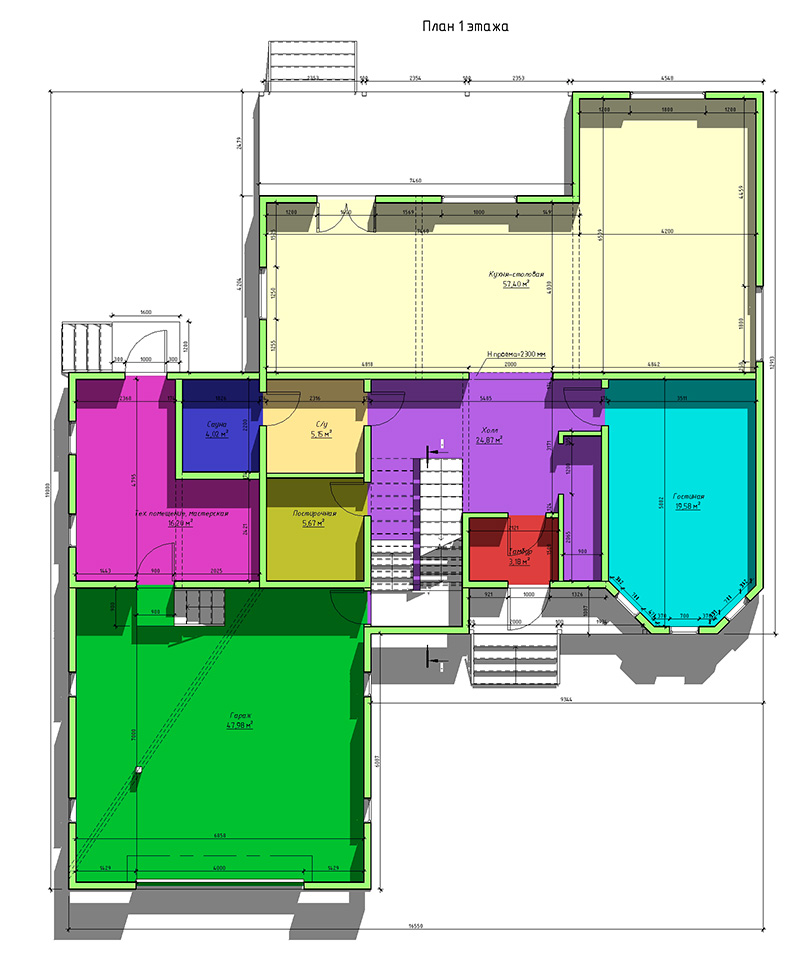
Фундамент — деревянный ростверк на винтовых сваях
Несущие стены — SIP панель (174мм)
Покрытие — битумная или металочерепица
Наружная отделка — штукатурка, облицовочная плитка, природный камень
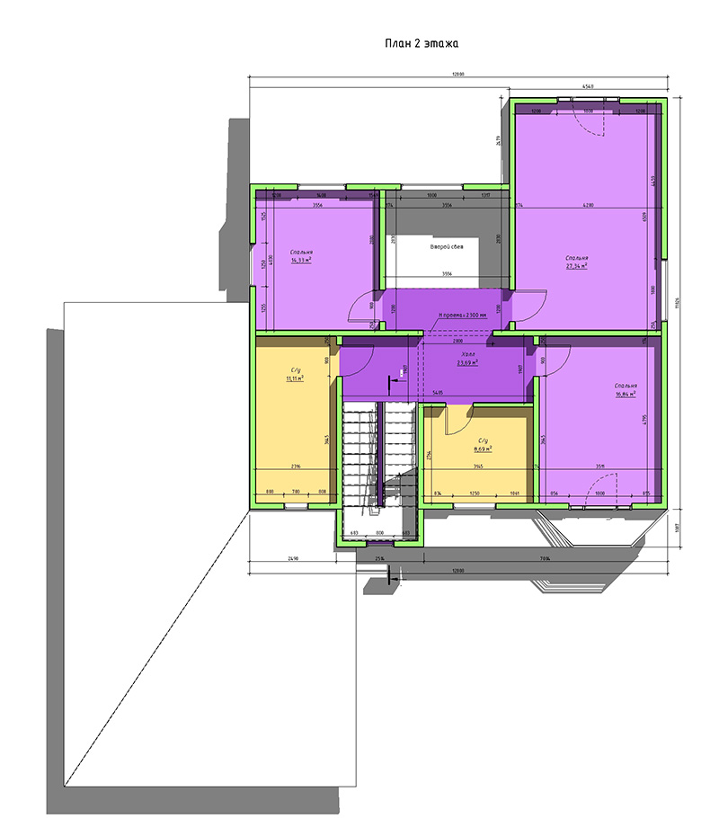
Фундамент — деревянный ростверк на винтовых сваях
Несущие стены — SIP панель (174мм)
Покрытие — битумная или металочерепица
Наружная отделка — штукатурка, облицовочная плитка, природный камень





