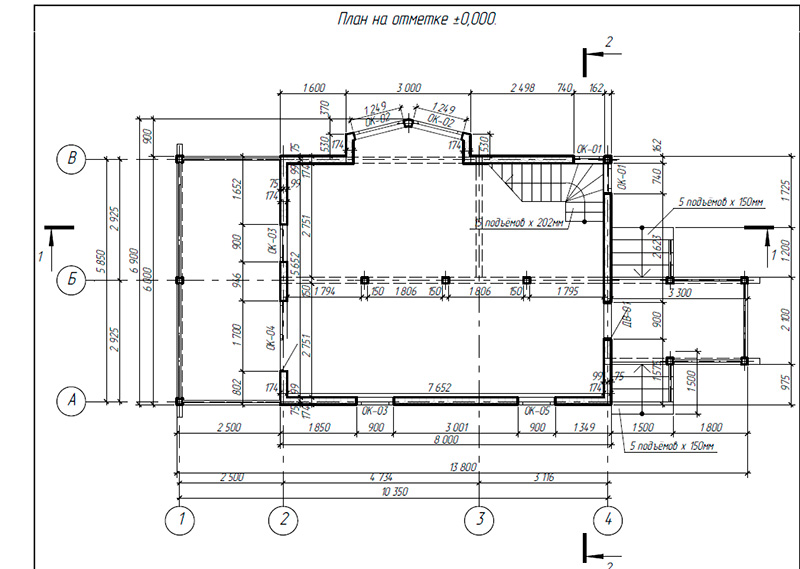
Фундамент — деревянный ростверк на винтовых сваях
Несущие стены — SIP панель (174мм)
Покрытие — мягкая черепица
Наружная отделка — фасадные панели.
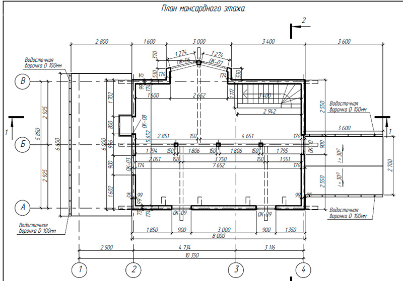
Фундамент — деревянный ростверк на винтовых сваях
Несущие стены — SIP панель (174мм)
Покрытие — мягкая черепица
Наружная отделка — фасадные панели.





