Республика Башкортостан

г. УФА

100,7

Площадь кв.м.

2

Этажи

4

Комнаты

1

Ванные

без гаража

Гараж

Удачный выбор для среднего по размерам дома.

Фасад в данном проекте можно легко поменять на любой декоративный материал (штукатурка, кирпич, фасадная плитка и т.п.). Также, по Вашему пожеланию, мы легко можем внести изменения в этот проект.
Описание
Первый этаж
Второй этаж
Фасады

Фундамент —ж/б ленточный

Несущие стены — SIP панель (174мм)

Покрытие — металочерепица

Наружная отделка — металопрофиль

Описание
Первый этаж
Второй этаж
Фасады
  1. Веранда 11,37м2
  2. Гостиная 22,90м2
  3. Спальня 8,94м2
  4. Спальня 8,94м2
  5. С/у 2,62м2
Описание
Первый этаж
Второй этаж
Фасады
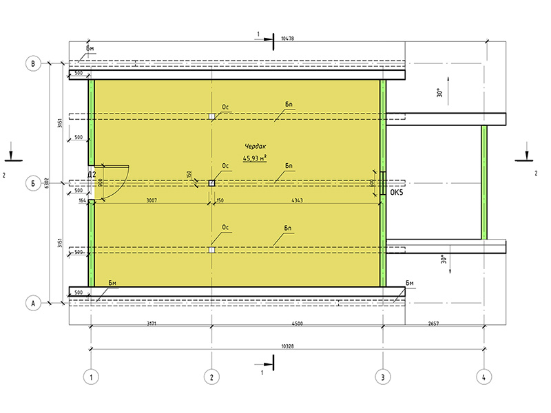
  1. Комната отдыха 45,93м2
Описание
Первый этаж
Второй этаж
Фасады