Республика Башкортостан

г. УФА

119

Площадь кв.м.

2

Этажи

5

Комнаты

1

Ванные

Гараж

Проект Алваро — это предложение для тех, кому необходим простор и уникальный дизайн. 

Фасад в данном проекте можно легко поменять на любой декоративный материал (штукатурка, кирпич, фасадная плитка и т.п.). Также, по Вашему пожеланию, мы легко можем внести изменения в этот проект.
Описание
Первый этаж
Второй этаж
Фасады

Фундамент — ленточный ж/б

Несущие стены — SIP панель (174мм)

Покрытие — битумная черепица

Наружная отделка — штукатурка

Описание
Первый этаж
Второй этаж
Фасады
  1. Прихожая 9,8м2
  2. Коридор 2,6м2
  3. С/у 11,2м2
  4. Кухня-гостиная 24,2м2
  5. Спальня 21,2м2
Описание
Первый этаж
Второй этаж
Фасады
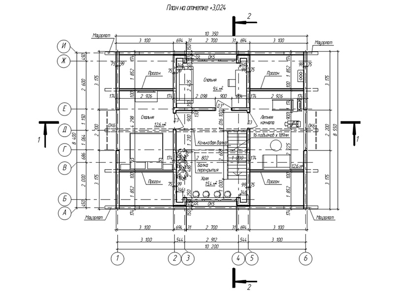
  1. Спальня 12,6м2
  2. Спальня 9,4м2
  3. Летняя комната 12,6м2
  4. Холл 15,4м2
Описание
Первый этаж
Второй этаж
Фасады